Kristýna Bělohradská · Kryštof Blažek
Corso Harrachov · 2025
photo Jan Kuděj
The interior of a penthouse apartment in Corso Harrachov, a new development situated in the very heart
of the Giant Mountains, has been designed by studio minio’s Kristýna Bělohradská and Kryštof Blažek.
Located at the foot of the main ski centre, directly on Harrachov’s main street with its restaurants
and shops, the apartment features a large terrace with exceptional views of the surrounding mountain
landscape.
of the Giant Mountains, has been designed by studio minio’s Kristýna Bělohradská and Kryštof Blažek.
Located at the foot of the main ski centre, directly on Harrachov’s main street with its restaurants
and shops, the apartment features a large terrace with exceptional views of the surrounding mountain
landscape.
The interior is enveloped in natural earth tones that are slightly darker yet still cosy. Studio minio
designed bespoke furniture in uncommon shades of black walnut, while the kitchen counter is made of
off-green granite and the walls are painted a warm grey.
designed bespoke furniture in uncommon shades of black walnut, while the kitchen counter is made of
off-green granite and the walls are painted a warm grey.
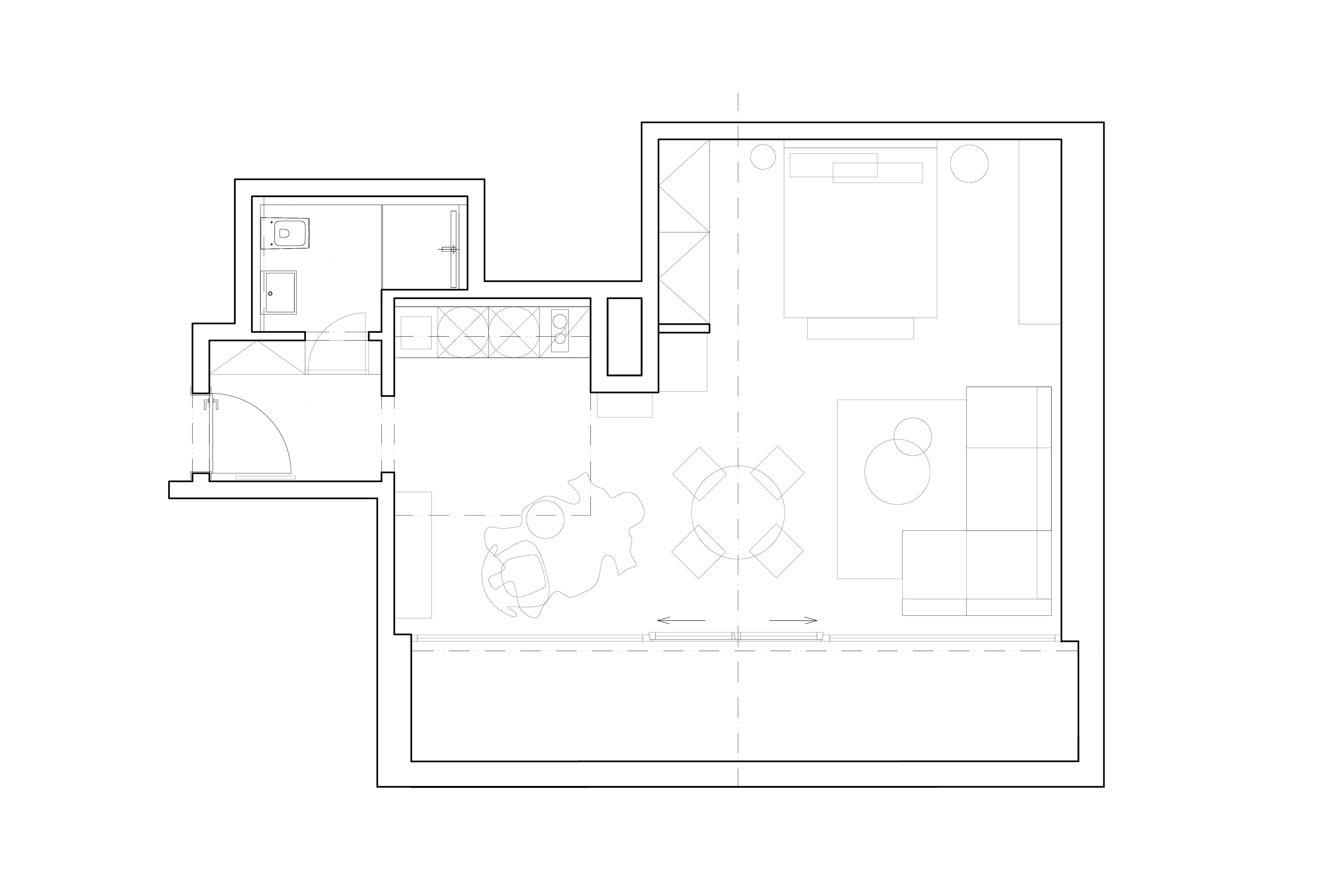
As the apartment is not excessively large, every square inch is inconspicuously put to good use:
the double bed contains sliding drawers; a chest across from the kitchenette conceals a coffee
machine and a foldaway bed; low shelves with additional storage space are set below the windows;
and a sideboard in the same design as the kitchenette is nestled against the wall beneath an oval mirror. Everything has its place, including a beautiful minimalist woodstove midway through the apartment. The wood-panelled walls are offset by shiny spherical wall lamps, while the main living area is lit by two floor lamps. Three large shiny pendant lights act as a dominant design feature above the round table
at the centre of the space, while the wall-to-wall windows opening onto the terrace offer a stunning view of Harrachov’s wooded peaks.
the double bed contains sliding drawers; a chest across from the kitchenette conceals a coffee
machine and a foldaway bed; low shelves with additional storage space are set below the windows;
and a sideboard in the same design as the kitchenette is nestled against the wall beneath an oval mirror. Everything has its place, including a beautiful minimalist woodstove midway through the apartment. The wood-panelled walls are offset by shiny spherical wall lamps, while the main living area is lit by two floor lamps. Three large shiny pendant lights act as a dominant design feature above the round table
at the centre of the space, while the wall-to-wall windows opening onto the terrace offer a stunning view of Harrachov’s wooded peaks.